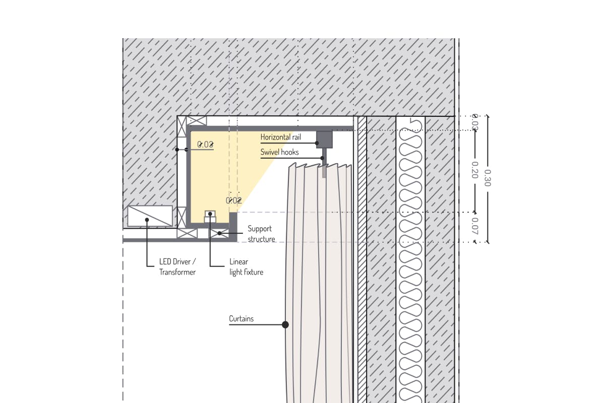
Curtain cove lighting detail

Get this drawing here 👉🏻 Click to open the template. Master the creation of millwork and shop drawings with our templates.

What is inside?

You will find a fully customizable millwork drawing with textures, shadows, and annotations. Feel free to reuse it in your drawings or export it in any format you need.

How to place it in my drawings?

Open the template, select the drawing, and right-click to 'copy as export'; then you can 'paste' it directly into your model.

Looking for more templates?

Don't forget to explore the app's Template section for a variety of templates suitable for any project you have in mind! If you're looking for even more templates, just reach out to us using the 'feature request' here: